Langues Español English Français русский Polskie
(+34) 965 501 563 (+34) 673 037 988 Favorites Facebook

Villa Nouvelle construction Fuente Álamo · La Pinilla

  • Réf.: NB-21068
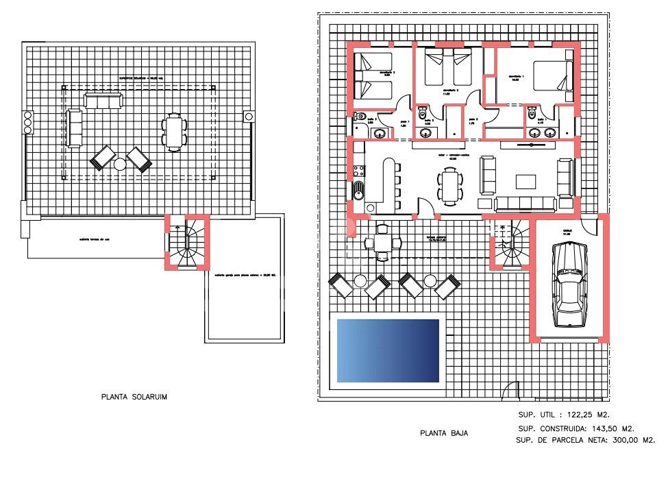
  • construit 143m2
  • Superficie du terrain 300m2
  • 3 Châmbres à coucher
  • 3 Salle de bains

Dèscription

VILLAS NEUVES À FUENTE ALAMO, MURCIA Nouvelle construction résidentielle de villas et de maisons de ville à Fuente Alamo, Murcie. Cet emplacement offre un cadre naturel exceptionnel, loin de l'agitation des grandes villes et de la pression touristique de la côte. En outre, nous nous engageons à travailler dans une perspective de développement durable, en minimisant notre impact sur l'environnement et en maximisant l'intégration avec la communauté locale. Ici, vos rêves d'un mode de vie paisible et durable deviennent réalité. Imaginez que vous vous réveillez chaque matin dans un cadre naturel époustouflant, entouré de paysages sereins et de la beauté unique de la campagne de Murcie. Les projets de construction neuve privilégient l'efficacité énergétique, l'utilisation de matériaux respectueux de l'environnement et l'intégration harmonieuse dans l'environnement rural. De la conception de la propriété à la planification du développement, nous nous efforçons de réduire notre empreinte carbone et de promouvoir des pratiques responsables dans toutes nos activités. Développement donnant la priorité à l'efficacité énergétique et à l'intégration communautaire pour créer des logements de haute qualité en harmonie avec l'environnement naturel. Pré-installation d'un système d'air conditionné canalisé, chaud/froid, installation de machines dans les options. Système d'interphone vidéo. Porte d'accès de sécurité laquée en couleur, avec serrure et accessoires de sécurité anti-vandalisme. Penderies avec coffre, doublées à l'intérieur, laquées en blanc. Les meubles de cuisine ne sont pas inclus (en option) : - Meublée d'éléments hauts et bas. Entièrement équipée. Possibilité de tout type de modification par le client. - Plan de travail en pierre. - Évier en acier inoxydable, avec robinetterie Roca ou similaire. - Plaque vitrocéramique, hotte aspirante et four électrique, en acier inoxydable. Balay ou similaire. Système de panneaux solaires photovoltaïques, avec réservoir d'accumulation. Pré-installation du système de climatisation, chaud/froid, installation des machines en option. Piscine privée en option, avec éclairage nocturne immergé et purification par système de chloration saline. Possibilité d'apporter des modifications à la propriété, sous réserve d'une évaluation préalable approuvée par les deux parties. Fuente Álamo de Murcia est une ville et une municipalité de la région de Murcie, dans le sud de l'Espagne. Elle est située à 22 km au nord-ouest de Carthagène et à 35 km au sud-ouest de Murcie. La ville se trouve dans le bassin de la Mar Menor, entourée des montagnes d'Algarrobo, Los Gómez, Los Victorias et du Carrascoy. L'eau de ces montagnes s'écoule dans la Rambla de Fuente Álamo, puis dans la Mar Menor. Fuente Álamo se trouve à 30 minutes de l'aéroport de Murcie-Corvera.

les caractéristiques

  • note de l'énergie: B

carte

Calculation hypothécaire


Change de devises

  • Livres: 329.717 GBP
  • rouble Russe: 0 RUB
  • Francs Suisse: 349.419 CHF
  • Yuan chinois: 3.041.305 CNY
  • Dollars: 444.874 USD

Contact par whatsapp Envoyer Ajouter au favoris Supprimer les favoris imprimer

Plus d'informations

×

Informez-moi de baisse de prix

×

des prix mensuel

×

Envoyer à un ami


×
Colegio de Abogados de Orihuela. Nº de Colegiado: 1377
Certified Residential Specialist
MLS Torrevieja
la Caixa Collaborateur
Currencies Direct Collaborateur